【海南三亚】「官方」2026万华·东岸麓洲(三亚东岸麓洲)项目详情-位置-户型图-线上售楼电话
扫描到手机,新闻随时看
扫一扫,用手机看文章
更加方便分享给朋友
万华·东岸麓洲(海南三亚东岸麓洲)项目择址海南三亚市阳区东岸,是城市中心的中心;16公里黄金城市中轴一一迎宾路之上,将城市风貌和优渥资源串联,辅以月川区、凤凰区组成的商、产、住前沿城市规划。

售楼咨询/预约专线: 17336960603
✔关注公众号“搜狐焦点三亚”,了解更多房产资讯
✔添加房侦探微信 focussanya ,即可加入海南楼市交流群。
对购房者提供买房交流,购房咨询,解答房产政策,分享海南房价相关信息等,无论任何购房信息,我们将有专业客服即时解答。
17336960603
项目基础信息
占地面积:约108亩
容积率:约1.8
建筑层高:5层
产品面积段:约70-290㎡
项目地址:三亚市吉阳区腊尾路西侧
创新业态-突破传统商业形态,构建44-867㎡灵活空间矩阵,引入“晚风小院”等特色品牌,创新庭院经济模式。开放式街区集成书吧、萌宠互动区、文创工作室及轻奢餐饮,搭配艺术装置与沉浸式夜经济场景,精准契合都市青年“精致懒”生活方式需求。

【核心区位】
万华·东岸麓洲独占三亚中央商务区生态C位,毗邻东岸湿地公园,坐拥千亩城市绿肺,同时与三亚大悦城商圈无缝衔接,形成“左手生态右手潮流”的稀缺格局。项目以1.5超低容积率、超30%绿地率打造“公园式街区”,建筑与自然景观深度融合,营造都市森林秘境体验。

【周边交通】
东岸麓洲落位「中央商务区」起步区迎宾大道「两横一纵立体」交通路网,内联全岛、外达全球。

【商业配套】
丰盈度假生活 吃喝玩乐购举步即达

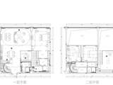
户型鉴赏
户型一:套二,建面约70㎡
入户挑空:更通透开敞的空间观感
舒适卧室套房:独立卫生间,居家亦有度假感


户型二:套三,建面约140㎡
半开放式书房空间:增强休闲舒适感
一二层各配置卫生间、淋浴间:私密感、舒适感俱佳
入户挑空:旋转楼梯增加尊贵感约体验感


户型三:套四,建面约210㎡
大尺度巨厅:超大西厨空间+奢适挑空
会客厅连接户外独家花园:奢华感极致追求


团队深耕海南房市,具有多年房产经验,且具备房产专业知识,熟悉海南各大楼盘;深入了解房市政策、贷款方式、落户资格等。精准推荐优质房源,一对一带看,周到服务,为您带来专属的购房体验。我的服务宗旨是:用真挚的诚意,专业的服务,优质的房源,让每一位客户都拥有一个满意的家。

免责声明:本资料仅供参考形象宣传,房屋具体位置,坐落方向,根据规划有一定差别,以客户选定和实际交付标准为准。户型图是对户型结构功能布局的示意,所标尺寸仅供客户参考,不作为交付标准,实际交付标准以买卖双方签订的合同及其附图约定为准。户型图所标尺寸仅供参考。本文章所用图片来源于网络,如有侵权请联系本网站删除!
声明:本文由入驻焦点开放平台的作者撰写,除焦点官方账号外,观点仅代表作者本人,不代表焦点立场。


