天正·三亚湾壹号(海南三亚)最新全解读配套,房价,户型,环境
扫描到手机,新闻随时看
扫一扫,用手机看文章
更加方便分享给朋友
天正·三亚湾壹号,坐落于美丽的三亚湾核心地带,是三亚永基房地产开发有限公司倾力打造的精品住宅项目。项目地理位置优越,自然资源丰富,是三亚在售离海最近的住宅项目之一,为追求高品质度假生活的人士提供了理想的选择。
项目位于三亚市天涯区第九小学(三亚湾校区)东100米,占地面积56.52亩,建筑面积12.8万平方米。社区规划了9栋16-17层的板式住宅,共计600户,容积率2.5,绿化率高达40%,保证了居住的舒适度和私密性。建筑层高3.1米,宽敞明亮,南北通透,独立电梯私享入户,尽显尊贵。
17336960626
——项目基础信息——
开发商:三亚永基房地产开发有限公司
建筑面积:约128391m²
占地面积:56亩
绿地率:约40%
容积率:2.5
土地年限:70年
标准层高:约3.1米
规划楼栋:9栋16层-17层板楼
楼栋排布:一梯一户、两梯两户
总户数:600户
车位配比:1:1.5
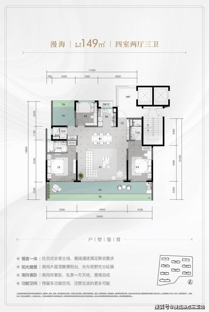
户型面积:
126㎡三室两厅三卫 | 149 ㎡四室两厅三卫
153㎡四室两厅三卫 | 177㎡四室两厅三卫
211 ㎡五室两厅三卫 | 213 ㎡五室两厅三卫
社区周边2公里内,医疗、教育、商业、交通全维配套,位于三亚湾核心位置,距海约800米住宅项目。
社区周边2公里内,医疗、教育、商业、交通全维配套
多功能业主会所,规划书吧、休闲棋牌、茗香茶室、活力健身等沉浸式私享场景
纯板式住宅,南北通透,独立电梯私享入户
部分户型创新设计270°全景飘窗主卧套、四开间朝南等奢阔格局
户型方正,三个卫生间起,超大尺度阳台
免责声明:本资料仅供参考形象宣传,房屋具体位置,坐落方向,根据规划有一定差别,以客户选定和实际交付标准为准。户型图是对户型结构功能布局的示意,所标尺寸仅供客户参考,不作为交付标准,实际交付标准以买卖双方签订的合同及其附图约定为准。户型图所标尺寸仅供参考
声明:本文由入驻焦点开放平台的作者撰写,除焦点官方账号外,观点仅代表作者本人,不代表焦点立场。


