海南【银基总部基地】银基总部基地产品优势+户型配套+地理位置如下
扫描到手机,新闻随时看
扫一扫,用手机看文章
更加方便分享给朋友
项目地处乐东黎族自治县九所新区,拟申请用地位于发展北路东侧,项目拟占地76亩,建设规划28栋多层,1栋12层公寓配套楼,1栋9层公寓楼。项目周边配套齐全,距龙腾湾、龙栖湾、龙沐湾直线距离不超过5公里,交通便利,可通过环岛高速、环岛高铁、公交铁路和旅游公路通达海口市、三亚市、机场等地区及各市县。
17336960626
【基础信息】
项目地址:海南乐东黎族自治县九所新区发展北路
售楼处地址:银基总部基地2号楼
当期期数:一期
当期户数:28户
主力户型:200-1450多功能可变
总户数:56户别墅 200套公寓
占地面积:76亩
绿化率:30%
总建筑面积:9.3万
车位数量: 独立车位
【项目区位】

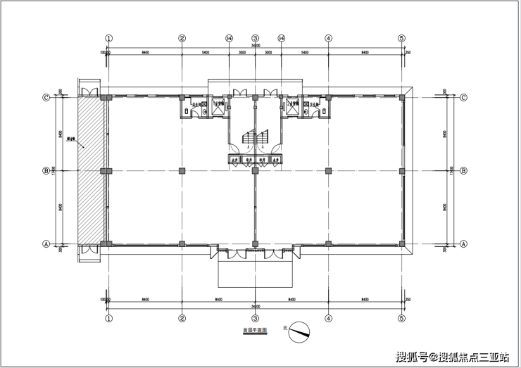
【户型鉴赏】



声明:本文由入驻焦点开放平台的作者撰写,除焦点官方账号外,观点仅代表作者本人,不代表焦点立场。


