三亚中交国际自贸中心售楼处电话/地址→楼盘详情→24小时热线电话
扫描到手机,新闻随时看
扫一扫,用手机看文章
更加方便分享给朋友
中交集团以对城市发展格局的研判力和前瞻性视野,在三亚中央商务区打造三亚中交国际自贸中心,恭迎四面八方客。这也是海南首个以LEED金级国际标准及绿色建筑二星国内标准打造的建筑。

黄金地段企业成长的沃土
对于企业而言,地段就是生命线坐拥百亿配套设施,四维交通网络畅通无阻商业资源汇聚,尽享高效、便捷、舒适的商务氛围,这里不仅是企业发展的战略高地更是塑造和提升品牌形象的重要窗口。
城芯主轴商务地标,罕见独立办公楼宇,作为企业对外展示的窗口,充分彰显头部企业形象与实力,成就中央商务区总部商务不凡气度。
四层阔绰空间,不管是内部结构还是功能布局,均可依据企业需要自由规划。1F旗舰商务区,约6米层高,大面宽、大进深,可做企业展厅、办公、交流接待,也可拓展商业旗舰店、产品体验店等功能;2F、3F、4F企业办公区,约4.4米层高,可规划共享办公、企业会晤、商务洽谈等多功能商务空间,满足企业多元化战略布局。
17336960626
多维立体交通 通达商务疆场
中交国际自贸中心占据迎宾路商务主轴首排,聚合海陆空立体交通网,地处城市综合体交通枢纽,高效通达全岛,链接全球。

5A甲级总部办公楼
约187米高迎宾路首排地标,约4.4米标准层高,约13.5米全挑空无柱化大堂,16部鼎配电梯,建面约327-387㎡产品。

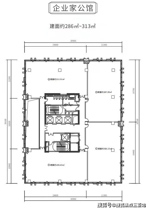
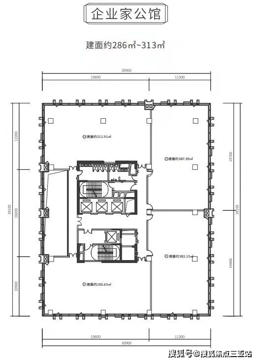
4梯4户,建面约285-315㎡,以国际时尚与绿色生态理念打造奢阔品质商务生活空间。
生态阳光绿庭 花园式绿意新体验
自五层开始,每两层打造约400㎡的立面挑空生态阳光中庭及空中花园、退台还原,配置自动控制的垂直与平面自然通风系统,将自然融入商务。
约6米精装奢阔挑高大堂 尽显商务气度
配备企业专属电梯、专属停车位与落客空间,带来尊崇商务礼遇。

房侦探团队深耕海南房市多年,具有丰富的房产经验,具备房产专业知识,熟悉海南各大楼盘;深入了解房市政策、贷款方式、落户资格等。精准推荐优质房源,一对一带看,周到服务,为您带来专属的购房体验。我的服务宗旨是:用真挚的诚意,专业的服务,优质的房源,让每一位客户都拥有一个满意的家。
免责声明:本资料仅供参考形象宣传,房屋具体位置,坐落方向,根据规划有一定差别,以客户选定和实际交付标准为准。户型图是对户型结构功能布局的示意,所标尺寸仅供客户参考,不作为交付标准,实际交付标准以买卖双方签订的合同及其附图约定为准。本文章所用图片来源于网络,如有侵权请联系本网站删除!
声明:本文由入驻焦点开放平台的作者撰写,除焦点官方账号外,观点仅代表作者本人,不代表焦点立场。


