海南三亚(2026)康润·红树岛(康润红树岛)交通|户型|结构|位置|配套
扫描到手机,新闻随时看
扫一扫,用手机看文章
更加方便分享给朋友
康润·红树岛:三亚主城中心——山水康养低密洋房,自然野奢生活范本。项目位于三亚中央商务区海罗单元:三亚中央商务区位于三亚市主城区中心区域,是海南自贸港13个重点建设园区中唯一以“商务区”命名的园区。海罗片区地处三亚市中心城区东南部,东起学院路、西至海螺一路、北抵迎宾路、东南临海螺岭,根据规划,将蝶变为产城一体、山水交融的国际商务总部公园和超享配套服务社区,整体形成 “一轴一带、一链多廊、三区多组团” 的精妙功能结构。

17336960626
【一、基本信息】
位置:海螺一路与海螺西路交汇处
总占地面积:96亩(一期52亩)、总建筑面积:约17万方,一期10.9万方
容积率:1.8、绿地率:40%
产 权:70年
户型:110-120-130㎡ 3房2卫
户型:211-222㎡ 6房3卫(顶跃)
梯户比:1梯2户、总 高: 10层、户 数:578户
商 铺:38-102㎡(45套)商铺高:4.5米
楼 栋:11栋、楼间距:40米
车 位:736个
交房时间:2026年底
交付标准:精装

【二、区位信息】
1、项目位于三亚中央商务区海罗单元
2、城市更新 海罗片区:打造国际花园总部、国际人才社区
3.多维交通
区域交通:以凤凰路、迎宾路“黄金双脉”为核心,衔接海螺一路、海螺西路,快速融入主城交通网。向东直达三亚湾、CBD月川单元等,满足通勤休闲;向北串联东岸单元及吉阳、天涯,跨区出行高效。
4.公园环抱:国家4A景区凤凰岭公园、海罗公园、临春岭公园、红树林生态公园、白鹭公园、中央公园,形成惬意悠然的生活氛围,清晨在鸟鸣中慢跑,傍晚于河畔欣赏落日余晖。
5.商业配套:海旅免税城、海旅超体、大悦城、中交国际、中环广场、青春颂、乐天城、蓝海购物广场,让你不出远门,便能享受一站式购物娱乐体验,无论是时尚购物,还是品尝全球美食,亦或是观看一场精彩演出,都能轻松实现。
6.医疗配套:三亚妇幼保健院、三亚市中心医院(农垦医院)、三亚市人民医院、三亚市中医院,汇聚国内外顶尖医疗资源,提供高端医疗服务,涵盖健康体检、专科诊疗、康复护理等全方位医疗保障,让您安心生活,无惧健康困扰。
7.教育配套:市七小(海罗校区),迎宾学校,丹州小学,丰和学校等,为孩子启蒙教育筑牢根基。享受多元文化教育环境,助力全面发展,在知识海洋中逐梦远航。
【三、建筑设计】
项目建筑深植本土,以“现代装饰派艺术(Art Deco)”的简洁几何线条为基底,勾勒出清晰利落的建筑轮廓,彰显质感,同时,设计灵感汲取于浪漫慵懒的南意大利度假风情,建筑加入中式元素,运用带有时间肌理的天然石材,搭配暖黄色涂料、深咖色格栅与雕花,为建筑披上了一层温润光泽,让空间满是惬意与松弛。
【四、园林设计】
项目所呈现的不仅是居所,更是一处365日持续焕活的沉浸式度假秘境。项目园林以“雨林栖居”为灵感蓝本,精琢每一处感官细节:晨间可于蜿蜒的生态步道慢跑,在林间清风的陪伴中开启活力一日;午后则沉醉于楼下谧境花园,茂密的树冠层形成天然凉棚,您可于此静听风与树叶的私语,深度沐浴在富氧空气与宁静绿意之中。这里,建筑与自然无界交融,将每一天都转化为对生命的滋养,让身心在都市中心重获雨林般的深层治愈与悠然逸趣。
【五、社区配套】
酒店式度假配套:以“流动岛屿”为设计灵感,项目打破空间桎梏,凭大尺度无界设计令泳池衔接天际山峦,拓展视野与心境。
康养专属空间:项目以细致关怀考量业主日常健康需求,匠心营造“伴芳阅岛”专属空间。
亲子成长配套:项目为业主精心打造“乐活漫岛”亲子成长空间,不仅是游乐之所,更是护持童心、承载欢笑的安全秘境。
中青年运动休闲:项目深谙都市精英健康的需求,为事业上升期业主打造全天候活力能量场,实现运动休闲与日常的无缝衔接。
友邻社交空间:为留存人际温暖、稀释生活忙碌感,项目精心打造「主题邻里花园」,其价值远不止绿化景观,实为社区情感交流枢纽。
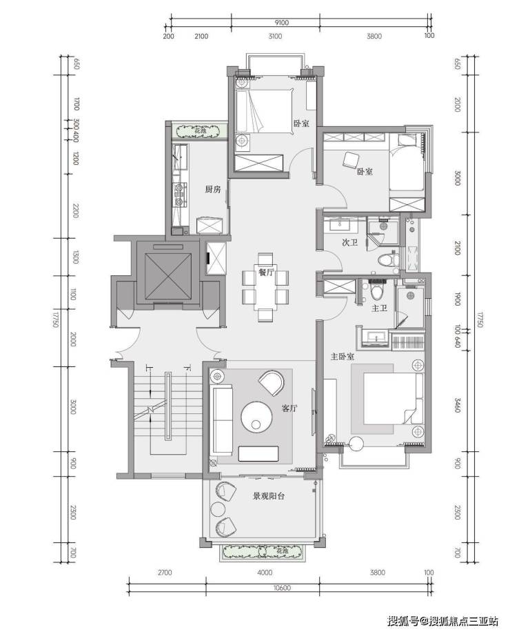
【六、户型展示】
1、A户型:建筑面积约110平方米三房两厅两卫
全能布局,引光入室,通透舒畅,明亮心境。
双阳台设计,一半诗意观景,一半烟火生活。
主客卫干湿分离,布局合理,随心从容起居。
设置玄关等收纳系统,有序收纳,康养身心。
套房式主卧,起居私密,营造静谧睡眠氛围。
2、B户型:建筑面积约120平方米三房两厅两卫
家庭聚场 | 全维公区,让陪伴自然而然
风光入室 | 引景入怀,生活坐拥自然绿意
净享卫浴 | 双卫配置,从容应对生活节拍
归置美学 | 系统收纳,于秩序中见自由
起居私境 | 主卧套房,奢享城芯静谧一隅
3、C户型:建筑面积约130平方米三房两厅两卫
朗阔客厅衔接观景阳台,阳光清风常伴左右
U型科学布局的厨房,操作流畅,高效省时
宽敞套房式主卧,配备独立卫浴,奢享私密
多维有序收纳,涵养从容不迫的生活节奏
南北双阳台,功能分明,诗意与烟火共生
团队深耕海南房市多年,具有丰富的房产经验,具备房产专业知识,熟悉海南各大楼盘;深入了解房市政策、贷款方式、落户资格等。精准推荐优质房源,一对一带看,周到服务,为您带来专属的购房体验。我的服务宗旨是:用真挚的诚意,专业的服务,优质的房源,让每一位客户都拥有一个满意的家。
免责声明
1、文章图片来源于微信搜索或百度搜索引擎,我方非相关图片的原创作者,也不对相关图片及内容享有任何权利。
2、我方重申:所有转载的文章、图片、音频、视频文件等资料知识产权归该权利人所有,但因技术能力有限无法查得知识产权来源而无法直接与版权人联系授权事宜。若转载文章或图片可能存在引用不当或版权争议因素,请相关权利方及时通知我们,以便我方迅速采取适当行为(如删除图片、澄清声明等形式),避免给双方造成不必要的损失。
3、本宣传资料对项目周边幼儿园、学校等教育资源的介绍旨在提供相关信息,并不意味着我方对就学安排作出承诺。教育资源的名称、办学性质、办学规模、学位设置、开学(班)时间、招生条件、收费标准及招生区域存在调整的可能,应以政府教育主管部门及办学方颁布的政策规定为准。
4、文章中文字和图片之间无必然联系,仅供读者参考。
5、本文所述内容和意见仅供参考,不构成市场交易依据和投资建议。
声明:本文由入驻焦点开放平台的作者撰写,除焦点官方账号外,观点仅代表作者本人,不代表焦点立场。


