2025三亚保利棠隐(保利棠隐)入手,开启幸福居家时光
扫描到手机,新闻随时看
扫一扫,用手机看文章
更加方便分享给朋友
保利棠隐——国家海岸上的渔樵耕读,国家海岸,传世藏品,隐奢之作央企保利 行业领军 世界500强,连续15年销售额保持房地产行业央企第一,2024年中国房地产百强企业TOP1,2023年《财富》世界500强第191位,自2015年以来,连续9年蝉联世界500强。
【占地面积】4.34万m²
【计容面积】1.52万m²
【容 积 率】0.35
【绿 地 率】30%
【土地性质】40年
【项目规划】高端商业、隐奢酒店、业主会所
【可售商业】49套
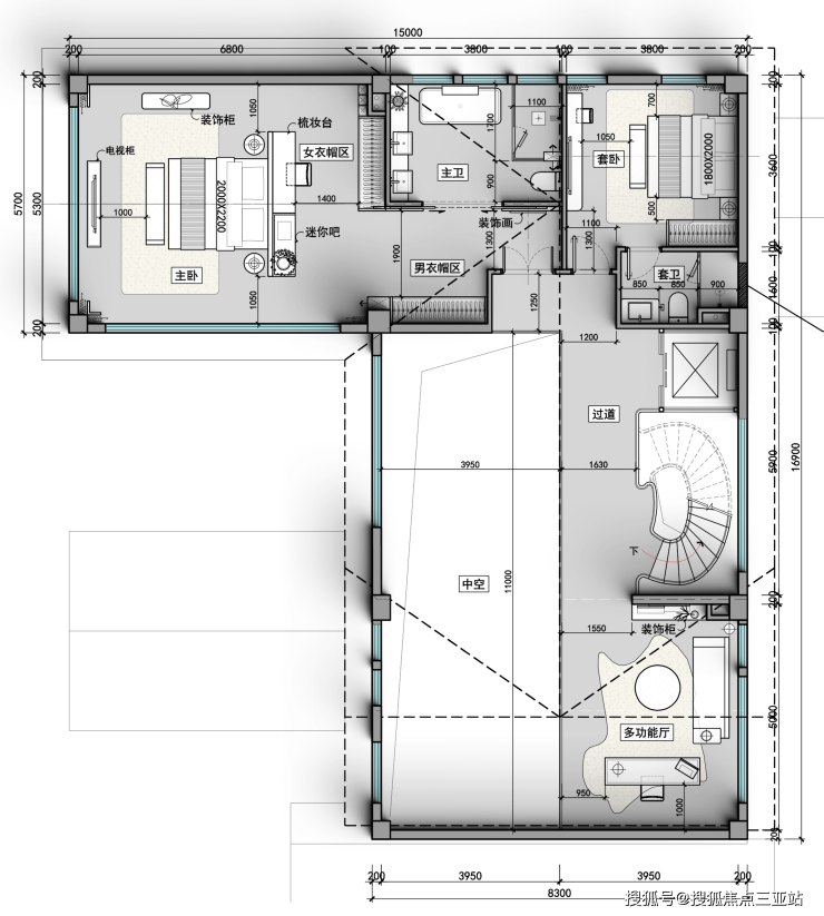
【户型面积】建面约 135-175m²
【交付标准】毛坯交付
保利发展于 2012年10月进入海南市场,以南北海口三亚双城双核布局,十二年四城打造28个项目,以和保利筑海南为牌愿景,自2014年起不断为海南树立多个标杆大盘。

海南——全球最大自由贸易港,对标世界最高水平的开放形态,规模相当于32个香港、49个新加坡、9个迪拜,助力海南成为中国对话世界的时代窗口。全岛零关税激活多元产业动能,激发更大消费力,打造真正的购物天堂,税率政策比香港、新加坡更胜一筹。
17336960626
在国家战略和海南省政府的支持下,海棠湾在2007年被正式定位为“国家海岸”,是唯一一个由国家规划打造且唯一一个国字头冠名的世界级度假湾区。规划总投资6000亿,打造全球时尚舞台与消费中心,以建设世界级的旅游休闲度假天堂为目标。
海棠湾造就的千年繁华底色,在这片土地上不曾褪色。全球规模第二大的单体免税店--三亚国际免税城已开业,太古里、宽窄巷子、万象城、北京SKP、上海百联、珠宝金街等即将入驻,一个全球时尚舞台与消费目的地正在升起。
22公里海岸线,国际鼎级品牌滨海酒店带,规划32家5星级酒店和2家7星级酒店,汇集亚特兰蒂斯、红树林、艾迪逊、保利瑰丽等酒店。
国家5A级潜水基地蜈支洲岛,海水可见度约27米,潜水、海钓等多种海上娱乐项目如临马尔代夫。亚特兰蒂斯水上主题乐园、海昌梦幻不夜城、国家水稻公园,释放内心本真向往。
知名院校护航,人大附中三亚学校、美国卫斯理安历史学院附属海南国际高中,家门口的知名院校,寓教于乐,让学习成为孩子喜悦成长的一部分。

解放军总医院301医院(唯一分院)、广安门医院(在建)、北京口腔医院(在建)、赫尔曼运动康复医院、上工谷运动医疗康复中心等,更好的认知身体能量,善待每一个人生阶段

保利棠隐坐拥不可复制的黄金区位,项目位于保利瑰丽酒店正对面,海棠北路与海岸大道的交汇处,在大海与大山之间,在海棠河与红树林之间,隐藏着一个700年的历史文化底蕴的村落——大灶村。大约在明朝中期,大灶村的居民就一直居住、生活、繁衍在此,发展至今已经有接近700年的历史沉淀。
本着尊重和立足历史文脉的原则,延续700年的原始村落建筑肌理,在产品打造的时候提取古村落原始民居的建筑元素(如坡屋顶、硬山山墙、门斗、柱廊等)及建筑材料(如青瓦、空斗老砖、浅色涂料、木门窗等),通过建筑设计手法进行现代化演绎。

在700年古村落—大灶村,重拾渔樵耕读式理想生活,安放岁月悠然。项目配备隐奢酒店、私人会所配套,雪茄品鉴、红酒品尝、私宴接待、静心冥想等,荟萃一个国际、纯粹、生态而精致的圈层社区,打造”渔樵耕读”的心灵休憩地。












免责声明:本资料仅供参考形象宣传,房屋具体位置,坐落方向,根据规划有一定差别,以客户选定和实际交付标准为准。户型图是对户型结构功能布局的示意,所标尺寸仅供客户参考,不作为交付标准,实际交付标准以买卖双方签订的合同及其附图约定为准。户型图所标尺寸仅供参考
声明:本文由入驻焦点开放平台的作者撰写,除焦点官方账号外,观点仅代表作者本人,不代表焦点立场。


