海南三亚华润置地海棠悦府 房源直通|24小时购房热线,让选房更轻松!
扫描到手机,新闻随时看
扫一扫,用手机看文章
更加方便分享给朋友
华润海棠湾-海棠悦府,地理位置:海棠湾龙江路商业配套:华润M1级别85万方万象城、太古里、中免免税店、亚特兰蒂斯,海昌不夜城、海棠68美食城、林旺商圈、藤桥商圈等。生态资源:国家首个5A海棠河公园。周边游玩:神泉高尔夫,海中海高尔夫,蜈支洲岛,铁炉港游艇码头教育配套:人大附中。医疗配套:解放军301医院。物业管理:华润万象生活。
期待已久的三亚海棠湾项目来啦!!!华润置地海棠悦府!!
17336960626
项目地址:海南省三亚市海棠区龙江路与海棠北路交汇处
开发商:三亚润投投资有限公司
总建面:约21万㎡
容积率:≤2.0
绿地率:约42%
物业公司:华润万象生活
总户数:1058户
层高:13-15F 低密度假奢居
面积:建面约143-343㎡高端悦府尊邸
◆五星级酒店群:亚特兰蒂斯丨华尔道夫丨JW丨喜来登丨四季丨艾迪逊丨威斯汀等
◆休闲娱乐度假群:梦幻不夜城丨亚特兰蒂斯水世界丨铁炉港国际游艇码头丨国际博览中心丨海棠广场海滨公园丨海中海高尔夫球会等
◆优质教育医疗群:人大附中三亚学校丨解放军总医院301海南分院丨北大口腔医院等
◆中国潮奢商业购物群:三亚万象城(建设中)丨太古里(建设中)丨珠宝金街(规划中)丨国际免税城丨宽窄巷子海棠故事(建设中)等
——三亚首作敬献塔尖 全球海湾新封面——
华润置地以领先全国的区域统筹开发实力,助力政府共同抬升海棠湾发展能级。以大生态、大健康、大消费、大生活四大规划统筹全域,携三亚首座万象城等高奢配套,与国家共同构建全球海湾新封面。
——国家海岸 至高人居——
华润置地在三亚布局的首个悦系产品,坐拥海河双景生态资源,纵享全维醇熟配套,荟集城市万象,致力于兑现理想滨海生活。
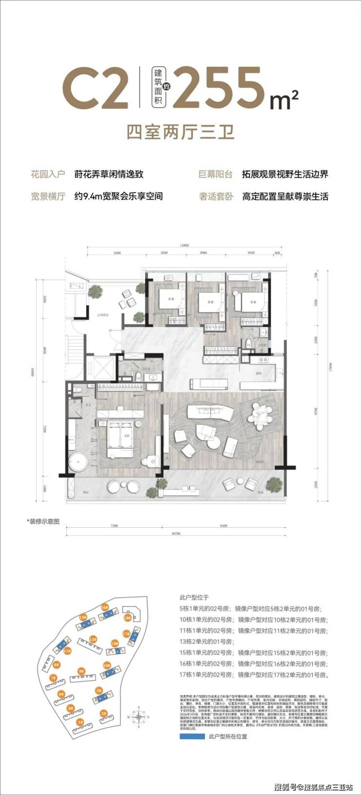
——户型鉴赏——
【A户型】
来到心灵的那片海,寻回至始如一的初心
【B户型】
见过湖海山川,满足一片北纬18度的海
【C户型】
略过此前的一切,在国家海岸掌舵潮向
【D户型】
登岛北纬18度的海岸,接收世界奢潮的来信
团队深耕海南房市多年,具有丰富的房产经验,具备房产专业知识,熟悉海南各大楼盘;深入了解房市政策、贷款方式、落户资格等。精准推荐优质房源,一对一带看,周到服务,为您带来专属的购房体验。我的服务宗旨是:用真挚的诚意,专业的服务,优质的房源,让每一位客户都拥有一个满意的家。
免责声明:本资料仅供参考形象宣传,房屋具体位置,坐落方向,根据规划有一定差别,以客户选定和实际交付标准为准。户型图是对户型结构功能布局的示意,所标尺寸仅供客户参考,不作为交付标准,实际交付标准以买卖双方签订的合同及其附图约定为准。本文章所用图片来源于网络,如有侵权请联系本网站删除!
声明:本文由入驻焦点开放平台的作者撰写,除焦点官方账号外,观点仅代表作者本人,不代表焦点立场。


