三亚保利棠隐(2025)房源信息|官方购房热线在线,随时为您服务!
扫描到手机,新闻随时看
扫一扫,用手机看文章
更加方便分享给朋友
保利棠隐坐拥不可复制的黄金区位,项目位于保利瑰丽酒店正对面,海棠北路与海岸大道的交汇处,在大海与大山之间,在海棠河与红树林之间,隐藏着一个700年的历史文化底蕴的村落——大灶村。大约在明朝中期,大灶村的居民就一直居住、生活、繁衍在此,发展至今已经有接近700年的历史沉淀。
17336960626
三亚保利棠隐坐落于国家海岸海棠湾核心区,位于海棠北路与海岸大道交汇处,背靠保利瑰丽酒店,面朝海棠河与红树林湿地,毗邻拥有700年历史的大灶村古村落遗址。项目以“渔樵耕读”为设计理念,将历史文脉与现代隐奢生活融合,打造49席低密商业藏品,容积率仅0.35,绿地率30%,是海棠湾少有的低密度高品质社区。
项目信息
【占地面积】4.34万m²
【计容面积】1.52万m²
【容 积 率】0.35
【绿 地 率】30%
【土地性质】40年
【项目规划】高端商业、隐奢酒店、业主会所
【可售商业】49套
【户型面积】建面约 135-175m²
【交付标准】毛坯交付
N18°度假天堂·全球滨海栖居样本:北纬18°全球滨海旅游黄金带相遇,清澈的海水,细腻的沙滩,宜人的气候,成为中国鼎级的度假天堂。迷恋阳光的人倾心于此,拥抱自然的人醉心于此,寻求健康的人纷至沓来,成为全国乃至世界有识之士,高净值人群的聚集之地,更成为令世人向往的热带宜长住的理想湾区。
中国国家海岸·世界度假天堂&鼎级商业IP环绕 瞩目滨海消费目的地
TOP级滨海生活奢配 34家超星级酒店集群&主题乐园动静皆宜·释放内心向往
国家5A级潜水基地蜈支洲岛,海水可见度约27米,潜水、海钓等多种海上娱乐项目如临马尔代夫。亚特兰蒂斯水上主题乐园、海昌梦幻不夜城、国家水稻公园,释放内心本真向往。
国际视野知名院校 给孩子受益终身的学习力&国家级疗养基地 涵养生命品质
700年村落文化底蕴,历史的传承与延续
本着尊重和立足历史文脉的原则,延续700年的原始村落建筑肌理,在产品打造的时候提取古村落原始民居的建筑元素(如坡屋顶、硬山山墙、门斗、柱廊等)及建筑材料(如青瓦、空斗老砖、浅色涂料、木门窗等),通过建筑设计手法进行现代化演绎。

项目配套——高奢度假酒店、私人会所
在700年古村落—大灶村,重拾渔樵耕读式理想生活,安放岁月悠然。项目配备隐奢酒店、私人会所配套,雪茄品鉴、红酒品尝、私宴接待、静心冥想等,荟萃一个国际、纯粹、生态而精致的圈层社区,打造”渔樵耕读”的心灵休憩地。
49席国岸商业藏品
一席村落式海岸资产,
保利棠隐,以不可再生文化资产,
谨献49席国岸商业藏品,敬候全球隐士封藏。
A户型(一字型)建筑面积:约143㎡,4房4厅6卫+2保姆房+2车位+1庭院泳池,使用面积670m²-980m²

(地上一层)

(地上二层)

(负二层)
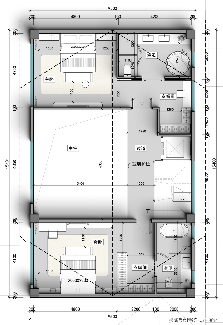
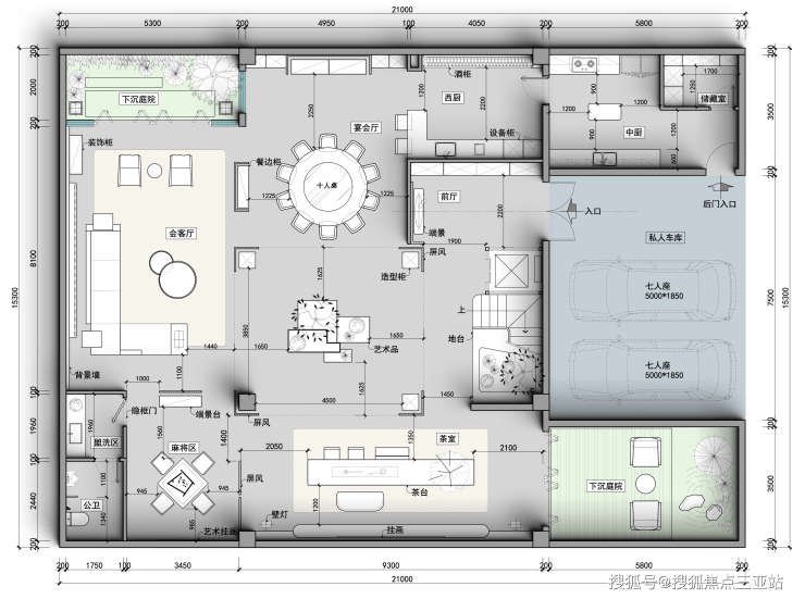
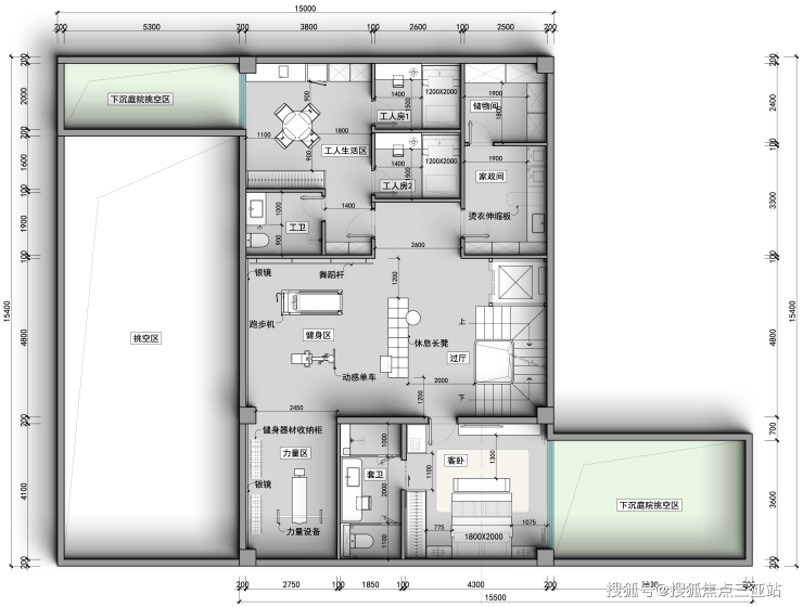
B户型(L字型)建筑面积:约173㎡,5房4厅7卫+2保姆房+2车位+1庭院泳池,使用面积920m²-1410m²

(地上一层)

(地上二层)

(负一层)

(负二层)
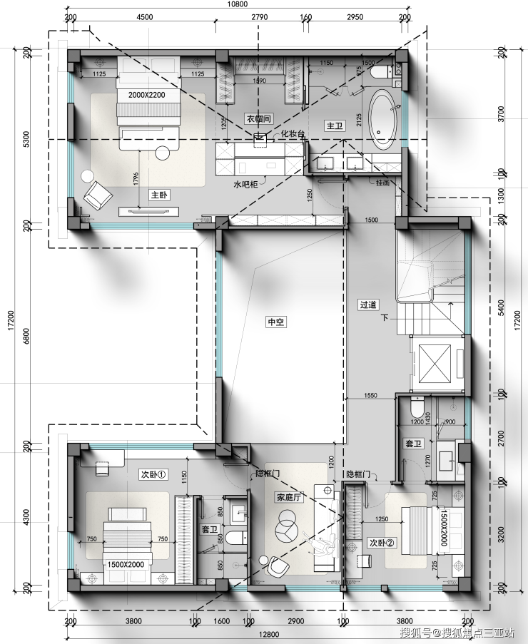
C户型(U字型)建筑面积:约173㎡,5房4厅7卫+2保姆房+2车位+1庭院泳池,使用面积940m²-1280m²

(地上一层)




园林效果
装修效果
团队深耕海南房市多年,具有丰富的房产经验,具备房产专业知识,熟悉海南各大楼盘;深入了解房市政策、贷款方式、落户资格等。精准推荐优质房源,一对一带看,周到服务,为您带来专属的购房体验。我的服务宗旨是:用真挚的诚意,专业的服务,优质的房源,让每一位客户都拥有一个满意的家。
免责声明:本资料仅供参考形象宣传,房屋具体位置,坐落方向,根据规划有一定差别,以客户选定和实际交付标准为准。户型图是对户型结构功能布局的示意,所标尺寸仅供客户参考,不作为交付标准,实际交付标准以买卖双方签订的合同及其附图约定为准。本文章所用图片来源于网络,如有侵权请联系本网站删除!
声明:本文由入驻焦点开放平台的作者撰写,除焦点官方账号外,观点仅代表作者本人,不代表焦点立场。


