麓鸣901|项目详情|楼盘解析|24小时官方购房热线!
扫描到手机,新闻随时看
扫一扫,用手机看文章
更加方便分享给朋友
三亚CBD唯此低密筑区,约75 - 1945㎡伴山产品·全系焕新·恭迎品鉴!宝塔集团,始建于2005年,在改革开放的创新浪潮中奋楫笃行19载,成为了涵盖“园区开发、城市更新、产业地产、商业运营、文化健康产业”五大业务板块,产业布局广西、广东、海南、北京等城市大型综合企业。

项目概况
◈━
项目地址:三亚市吉阳区海螺南路9号
开发商:海南新宝盛置业有限公司
总占地面积:56695.26m²
总建筑面积:约17万方
建筑密度:35%
绿化率:33%
容积率:1.8
楼栋总数:10栋楼
层数:3-11层
产品:平层、跃层、会客厅
总户数:483户
停车位:1052个
产权年限:40年
物业公司:金地物业

十大价值
◈━
1. 海罗核芯腹地,尽揽千亿配套
2. 五星酒店,一站式商旅配套服务
3. 容积率1.8,低密社区,纯粹高阶圈层
4. TOP配置,LOW-E玻璃幕墙及蒂森克虏伯电梯
5. 三亚市区罕有山岭资源,私享山体公园景观
6. 无边界泳池,白天畅游山麓,夜晚遨游星空
7. 区域核芯枢纽,立体交通,便利出行
8. 金地高端物业,一站式铂金管家式服务
9. 艺术美学示范区,多功能报告厅可容纳千人
10.空间无柱功能多样,270°环幕星空露台(三亚CBD唯此一处)

17336960626

自贸港商务之巅
◈━ 三亚中央商务区,位于主城区,海南自贸港13大先导项目之一,致力于建设成为国际化区域总部经济及中央商务集聚区、国际旅游消费中心引领区,规划为四大单元:

自贸港国际峯面
◈━ 项目位于三亚海罗片区,规划总用地面积为281.41公顷,定位为产城一体、山水交融的国际商务总部公园和超享配套服务社区
◈━ 规划有高端人才社区、文体中心(含青少年宫、综合文化活动中心、体育场馆),海罗国际学校、国际幼儿园、国际性综合型医院、国际商业MALL等国际化配套


生态环抱
◈━ [占据市中心稀缺的城市山岭资源]
项目背靠海螺岭、临春岭及凤凰岭景区,中央商务绿轴之上,山海联动的城市生态名片七大公园环抱:凤凰岭公园、临春
岭公园(约2800亩)、红树林生态公园、东岸湿地公园、金鸡岭公园、中央公园、体育公园,目之所及皆是自然风光,享
城市绿肺带给您不一样的生活体验
商业休闲
◈━ 海旅免税城、海旅超体、大悦城、青春颂、乐天城等超大型复合商业综合体
三亚千古情景区
三亚湾椰梦长廊
医疗配套
◈━ 上海妇幼保健院、三亚市第三人民医院、三亚市人民医院、三亚市中医院等
教育配套
◈━ 附近有海罗小学,4公里内有巴蜀中学,丹州小学,华侨学校高中部,丰和学校等
交通配套
◈━ 北临海螺南路直通凤凰路和解放路,东侧规划路,贯通落笔洞路,链接三横三纵城市主轴
海:三亚凤凰岛邮轮港
陆:东面贯通落笔洞路,北临海螺南路
空:三亚凤凰机场
轨:三亚动车站

建面约 157-237 ㎡ 阔山平层(3.6m)
建面约 75-237㎡ 观山跃层 (5.4m)
◈━ 样板间- 建面约89㎡观山跃层(5.4m)
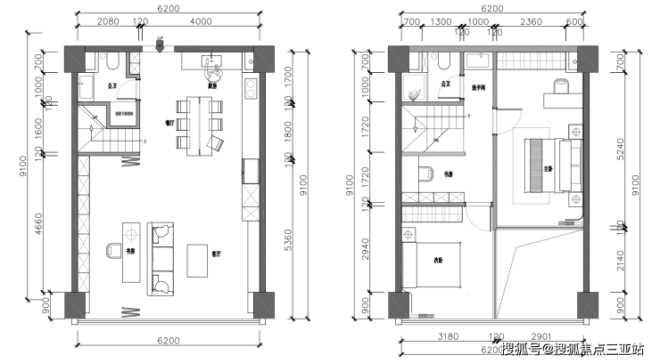
◈━ 3#观山跃层(2+1房2卫),建面约81.93平

◈━ 3#阔山平层(3+1房2卫),建面约163.86平

5#楼 建面约 300 - 1945㎡ 伴山会客厅
约3.6-5.4米层高,至阔25.6米面宽,270°视野
◈━ 部分边户带172平超大星空露台
团队深耕海南房市,具有多年房产经验,且具备房产专业知识,熟悉海南各大楼盘;深入了解房市政策、贷款方式、落户资格等。精准推荐优质房源,一对一带看,周到服务,为您带来专属的购房体验。我的服务宗旨是:用真挚的诚意,专业的服务,优质的房源,让每一位客户都拥有一个满意的家。
免责声明:本资料仅供参考形象宣传,房屋具体位置,坐落方向,根据规划有一定差别,以客户选定和实际交付标准为准。户型图是对户型结构功能布局的示意,所标尺寸仅供客户参考,不作为交付标准,实际交付标准以买卖双方签订的合同及其附图约定为准。户型图所标尺寸仅供参参考
声明:本文由入驻焦点开放平台的作者撰写,除焦点官方账号外,观点仅代表作者本人,不代表焦点立场。


