三亚中交国际自贸中心丨售楼处电话丨售楼处地址丨最新价格
扫描到手机,新闻随时看
扫一扫,用手机看文章
更加方便分享给朋友
三亚中央商务区,城市发展的领航者,聚合了最密集的资本、最顶尖的人才和最高精尖的产业链,撬动着最大的经济能量。
中交集团以对城市发展格局的研判力和前瞻性视野,在三亚中央商务区打造三亚中交国际自贸中心,恭迎四面八方客。这也是海南首个以LEED金级国际标准及绿色建筑二星国内标准打造的建筑。
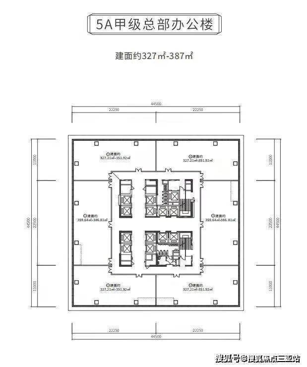
340-371m²5A甲级总部办公楼;45-100m²菁英空间;285-315m²企业家公馆;BLOCK商业街区

17336960626
【中交国际自贸中心项目概况】
开发商:海南中交总部经济发展有限公司
项目地址:中国三亚·总部经济及中央商务区(迎宾路)
建筑面积:总占地39.61亩,总建面约21万㎡
物业类型:写字楼 , 商业街商铺 , 公寓
项目特色:创意地产 , 潜力楼盘
产品类型:5A甲级总部办公楼+LOFT菁英空间+企业家公馆+BLOCK商业街区
容积率:4.5-6.5
绿化率:25%
产权年限:40年
交付标准:公区精装,套内毛坯
设计团队:华东建筑设计研究院有限公司
中交国际自贸中心占据迎宾路商务主轴首排,聚合海陆空立体交通网,地处城市综合体交通枢纽,高效通达全岛,链接全球。
距离凤凰国际机场约14公里;
距环岛高铁三亚站约6公里;
距三亚港、三亚凤凰岛国际邮轮港约8公里。

【周边配套】三亚中央商务区,自贸海外新窗口,国际商业新磁场。
环拥三亚最大的淡水湿地公园,生态功能优良,作为三亚”中央公园”,用优越的资源生态环境吸引全球投资者。
【内部配套】首排摩天塔 约187米地标天际线。
落址中心 领行总部经济
作为海南自贸港11个重点园区之一,也是三亚唯一设在城市中心的重点园区,三亚中央商务区在城市经济升维中,担当“先锋者”的角色,迎来了爆炸式的发展:截至2021年12月底,已有2000余家企业在三亚中央商务区新注册或迁入。
【产品户型】
340-371m²5A甲级总部办公楼;45-100m²菁英空间;285-315m²企业家公馆;BLOCK商业街区

房侦探团队深耕海南房市多年,具有丰富的房产经验,具备房产专业知识,熟悉海南各大楼盘;深入了解房市政策、贷款方式、落户资格等。精准推荐优质房源,一对一带看,周到服务,为您带来专属的购房体验。我的服务宗旨是:用真挚的诚意,专业的服务,优质的房源,让每一位客户都拥有一个满意的家。
免责声明:本资料仅供参考形象宣传,房屋具体位置,坐落方向,根据规划有一定差别,以客户选定和实际交付标准为准。户型图是对户型结构功能布局的示意,所标尺寸仅供客户参考,不作为交付标准,实际交付标准以买卖双方签订的合同及其附图约定为准。本文章所用图片来源于网络,如有侵权请联系本网站删除!
声明:本文由入驻焦点开放平台的作者撰写,除焦点官方账号外,观点仅代表作者本人,不代表焦点立场。


