晶麒麟优秀奖-专业组-空间组-三亚清水湾私宅
扫描到手机,新闻随时看
扫一扫,用手机看文章
更加方便分享给朋友
结庐在人境,而无车马喧--为业主打造带有个人印记的“家”
这栋别墅我们从“庐”字出发开启我们的设计思路。“庐”,舍也, 亦泛指简陋居室。唐朝大文学家刘禹锡曾在“陋室铭”中已经向我们揭示了陋室不陋的真谛,“陋者”房舍的偏辟、简洁。“不陋者”中国文人精神层面的丰富及滋养心灵所带来的富足感。
在接到这个案子后通过跟业主一家的多次沟通,深刻体会到业主的诉求。功能层面,整栋房屋的功能接近小型私人会所,即要满足家族成员度假需求还要满足企业核心团队商务度假的需求。精神思想层面,以“家”为核心元素,结合中国传统文人情趣,用现代的设计语汇传达出业主一家的内在素养。
在设计中我们将中国传统文人情怀及审美趣味贯穿到整个设计思路中,通过对整栋房屋及院落的整体规划和设计,运用符合现代审美习惯的设计元素让整个空间传达出“结庐在人境,而无车马喧。问君何能尔,心远地自偏”的思想意境。让每个走进这栋别墅的人都能感受到主人知性的内心品味,也同时让业主拥有一栋带有个人特质,属于自己内心的别墅。
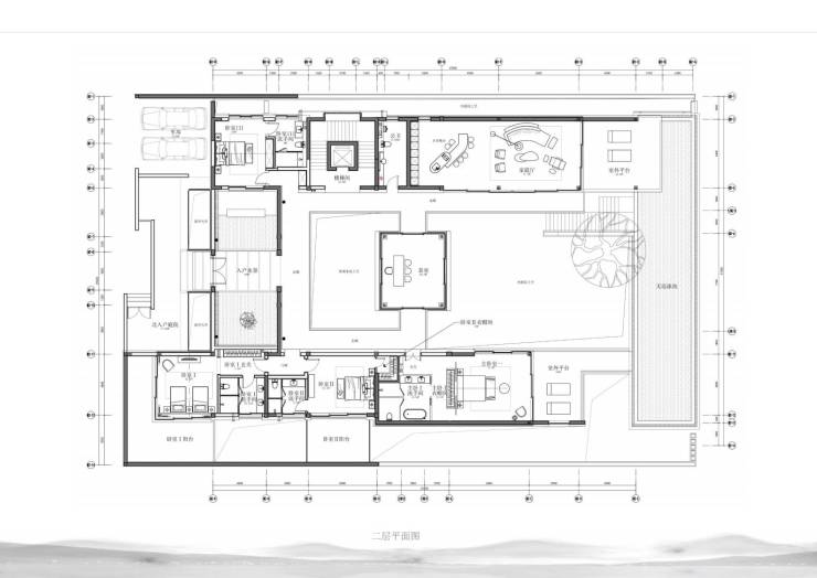
本案坐落在海南三亚清水湾,凭海凌风,远离喧嚣,为两层的大体量独栋度假别墅。鸟瞰别墅,北、东、西三面为房屋,中间是院落,一层南入户,二层北入户和传统四合院极为相似。在整体布局时,借鉴中式建筑的中轴对称关系整体布局,局部运用透景,借景等手法,模糊室内与室外的界限,并为每个套房拓展出了室外休闲空间,它们或精致恬淡,或小桥流水、曲径通幽,让身处其中的人有人在景中,景在室内,一步一景,的感觉。
设计者:张涓
主创设计师(公司创始人),毕业于清华大学美术学院,从事高端住宅软装设计工作十 余年,曾就职于业内知名设计公司居其美业,任室内软装设计总监。亲自主持完成样板间、会所、售楼处等百余套,对各种房屋类型都有很强的设计把控能力,在长期的工作中形成了自己的设计理念。
中国建筑装饰协会会员,高级陈设艺术设计师
2019第十五届中国建筑装饰及设计艺术博览会华鼎奖
CBDA 2018中国设计年度人物较佳设计机构奖
声明:本文由入驻焦点开放平台的作者撰写,除焦点官方账号外,观点仅代表作者本人,不代表焦点立场。
