天正·三亚湾壹号(天正·三亚湾壹号)|楼盘首页-项目配套-户型
扫描到手机,新闻随时看
扫一扫,用手机看文章
更加方便分享给朋友
三亚,这座被誉为“东方夏威夷”的海滨城市,以其得天独厚的自然风光和温暖宜人的气候吸引了无数国内外游客的目光。如今,三亚永基房地产开发有限公司携手匠心之作——天正三亚湾壹号,再次刷新了海岛高端住宅的新标准。天正三亚湾壹号,坐落于三亚湾核心区域,占地面积约56亩,建筑面积约128391平方米,是专为追求高品质生活的您量身定制的理想居所。项目绿地率高达约40%,将自然生态与人文建筑完美融合,为业主营造出一个绿意盎然、生态宜居的生活环境。
17336960626
项目详情
项目地址:三亚市天涯区第九小学(三亚湾校区)东100米
开发商:三亚永基房地产开发有限公司
产权年限:2024-2094年
占地面积:56.52亩
建筑面积:12.8万平方米
容积率 :2.5
绿化率:40%
总层高:16-17层
层高:3.1米
总户数:600户
停车位:879个
物业服务:天正物业
社区周边2公里内,医疗、教育、商业、交通全维配套,位于三亚湾核心位置,距海约800米住宅项目。
社区周边2公里内,医疗、教育、商业、交通全维配套
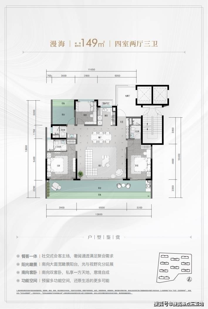
多功能业主会所,规划书吧、休闲棋牌、茗香茶室、活力健身等沉浸式私享场景
纯板式住宅,南北通透,独立电梯私享入户
部分户型创新设计270°全景飘窗主卧套、四开间朝南等奢阔格局
户型方正,三个卫生间起,超大尺度阳台
免责声明:本资料仅供参考形象宣传,房屋具体位置,坐落方向,根据规划有一定差别,以客户选定和实际交付标准为准。户型图是对户型结构功能布局的示意,所标尺寸仅供客户参考,不作为交付标准,实际交付标准以买卖双方签订的合同及其附图约定为准。户型图所标尺寸仅供参考
声明:本文由入驻焦点开放平台的作者撰写,除焦点官方账号外,观点仅代表作者本人,不代表焦点立场。


